Navigation

2-geschossiges Bürogebäude mit Halle / Lagerhalle / Gewerbehalle

Bürogebäude mit Halle in 40721 Hilden

Aktuelles Immobilien-Inserat vom: 06.12.2025

Eine tolle Gelegenheit in Hilden!

KOSTENFREI EXPOSÉ ANFORDERN

Objektbeschreibung

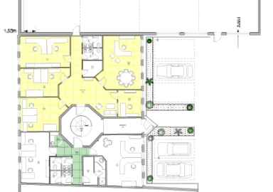
Es handelt sich um ein 2 geschossiges Bürogebäude mit Halle in Hilden/Rhld.

Verkehrsanbindung A3 + A46 in 7 Min.; A59 in 3 Min.

Baujahr 1994

Nutzfläche Bürogebäude: insgesamt 564 m²
aufgeteilt in EG rechts : 175 m²
EG links : 105 m²
OG : 284 m²
Nutzfläche Halle : 480 m²

Mietpreise:
Halle 2.600 Euro zzgl. NK + MWST
EG rechts 1.740 Euro zzgl. NK + MWST
EG links 1.030 Euro zzgl. NK + MWST
OG 2.800 Euro zzgl. NK + MWST
_______________________________________________
Gesamt 8.170 Euro zzgl. NK + MWST

Die Büroflächen können einzeln angemietet werden; das Büro im EG rechts ist mit der Halle zwingend verbunden.

Bezug: Kurzfristig möglich

Ausstattung Büros:
modernes, ansprechendes Verwaltungsgebäude, repräsentativer Eingang, großzügige Raumaufteilung, Fußbodenheizung, Teppichboden, Kabelkanäle, bodentiefe Fenster. Alle Büroflächen voll klimatisiert. Raumaufteilung kann den Wünschen des Mieters angepasst werden.

Ausstattung Halle: Stützenfreie Halle 30 x 16 Meter, ebenerdige Zufahrt.Sektionaltor, Luftgebläseheizung, Sichtverbindung nach außen.

Parkplätze: Es können bis zu 15 PKW-Stellflächen auf dem Firmengelände fest angemietet werden. Preis pro Stellplatz 35 Euro.

Heizung: Gas-Zentralheizung, Büro Fußbodenheizung mit separaten, einzeln einstellbaren Heizkreisen, Hallen Luftgebläseheizung.

Ausstattung

Lage

Sonstiges

Das Angebot ist für den Mieter provisionsfrei!!

Haben Sie bitte Verständnis dafür, dass nur Anfragen mit vollständiger Adresse bearbeitet werden können. Es wäre gut, wenn Sie bei Ihrer Kontaktanfrage auch eine Telefonnummer angeben würden, unter der wir Sie tagsüber erreichen können. Durch Absenden Ihrer Anfrage an Rhein-Wupper-Immo, gestatten Sie ausdrücklich die Datenspeicherung innerhalb unseres Unternehmens und die telefonische Kontaktaufnahme. Somit gilt das Anrufverbot als aufgehoben, sofern von Ihnen diesbezüglich kein Widerspruch erfolgt ist.

Exposé anfordern

Gerne lassen wir Ihnen ein Exposé zu diesem Objekt per Post zu kommen. Dieser Service ist für Sie natürlich kostenfrei.

Nutzen Sie für Ihre Exposé-Anforderung bitte ausschließlich das Formular auf dieser Seite.

Ihre Exposé-Anforderung wird digital übermittelt an:

Rhein-Wupper-Immo
Mittelgönrather Str. 15
DE-42655 Solingen
Deutschland


Exposé-Anforderungen, die werktags bis Uhr 16:00 eingehen, werden in der Regel am selben Tag per Post an Sie verschickt. Achten Sie daher bitte auf eine korrekte Anschrift.


RWI 1027 - 2-geschossiges Bürogebäude mit Halle / Lagerhalle / Gewerbehalle



Ich interessiere mich für dieses Objekt. Bitte lassen Sie mir weitere Informationen zu kommen.


MEINE DATEN:

* Diese Felder müssen ausgefüllt sein!

Die Microsoft Email-Adressen mit den Endungen @outlook.de, @outlook.com, @hotmail.de, @hotmail.com und @live.de / @live.com werden ausdrücklich nicht akzeptiert, da Microsoft seit über 20 Jahren immer wieder Emails von uns blockiert und den Empfänger darüber nicht informiert (Klick für weitere Informationen). Nutzen Sie bitte eine seriösen Email-Anbieter für Ihre Email-Kommunikation! Empfehlen können wir Ihnen "Gmail" oder Yahoo, falls Sie keine eigene Email-Domain haben.

Rhein-Wupper-Immo schützt Ihre Privatsphäre: Ihre persönlichen Daten werden absolut vertraulich behandelt und keinesfalls an Dritte weitergegeben. Die Daten werden ausschliesslich zur internen Bearbeitung Ihrer Anfrage von uns gespeichert.

* (Allgemeine Geschäftsbedingungen PDF)

Es gelten unsere Allgemeinen Geschäftsbedingungen
als vereinbarter Vertragsinhalt, wenn Sie ein Exposé bei uns anfordern oder Informationen zu einem Objekt einholen.

* Die Allgemeinen Geschäftsbedingungen habe ich zur Kenntnis genommen. Ich handele im eigenem Namen. Alle zur Verfügung gestellten Informationen werde ich vertraulich behandeln und nicht an Dritte weitergeben.

Ich bestätige, die Widerrufsbelehrung gelesen zu haben und über die Rechtsfolgen des Widerrufs belehrt worden zu sein.

Ich stimme als Verbraucher ausdrücklich zu, dass Sie als Makler vor Ende der Widerrufsfrist mit der Ausführung der beauftragten Dienstleistung beginnen. Mir ist bekannt, dass ich bei vollständiger Vertragserfüllung durch Sie mein Widerrufsrecht verliere (§ 356 Abs. 4 BGB). Über mein Widerrufsrecht bin ich in Kenntnis gesetzt worden.

Ich willige in die Verarbeitung meiner Daten zum Zweck der Bearbeitung meiner Anfrage ein und habe die Datenschutzerklärung gelesen.



Ihre Angaben werden verschlüsselt übertragen und gemäß unserer Datenschutzerklärung verarbeitet.

Rhein-Wupper-Immo
Tel.: 0212 - 64 27 320

Tags:

powered by webEdition CMS